TERASEK_01.jpg
White Strip.jpg
Axo_2.jpg
White Strip.jpg
TERASEK -23.jpg
White Strip.jpg
TERASEK -60.jpg
White Strip.jpg
TERASEK -63.jpg
White Strip.jpg
TERASEK -20.jpg
White Strip.jpg
0102-A-S-XX-GA-Section_02.jpg
White Strip.jpg
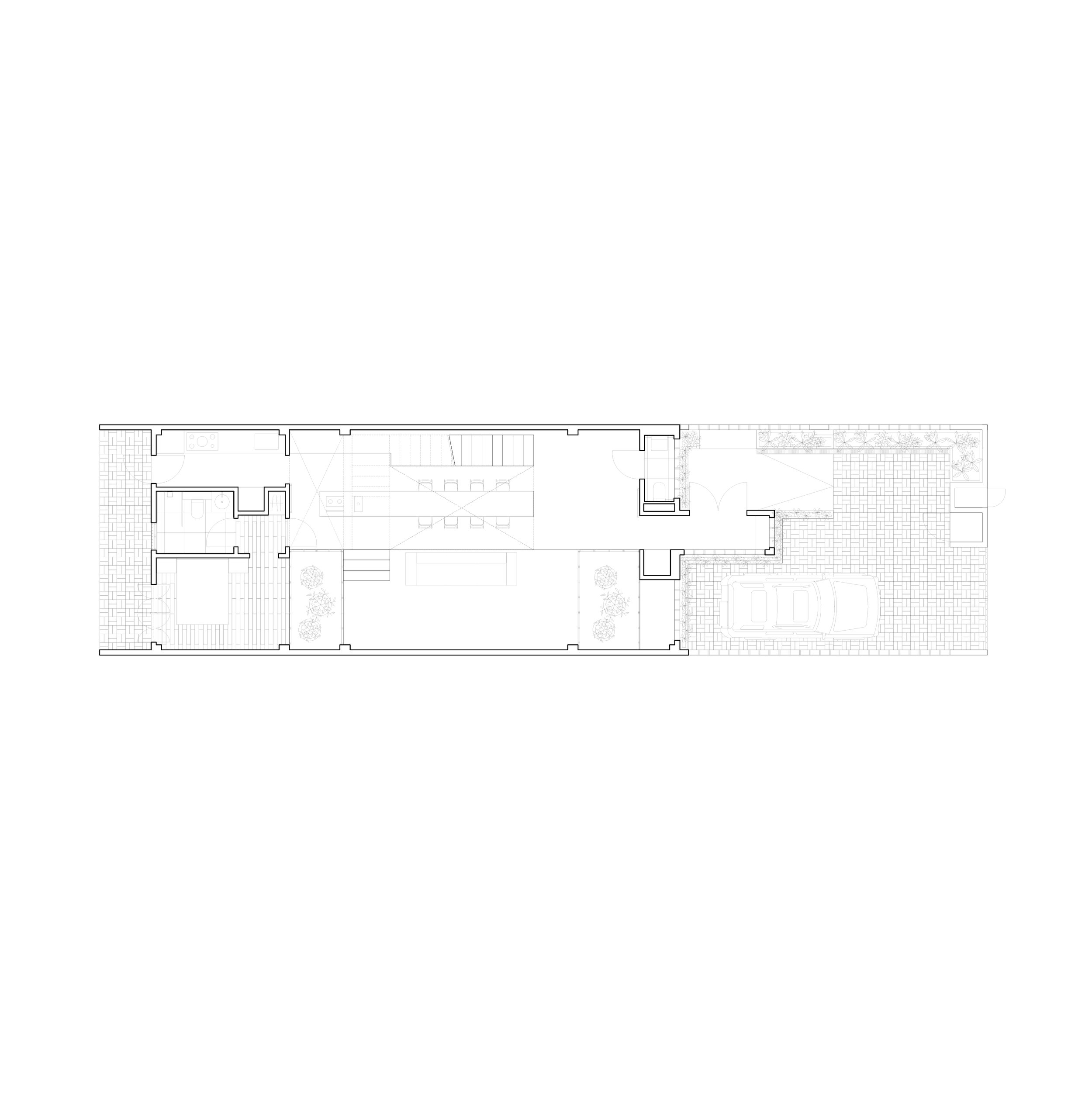
0102-A-P-00-GA-Plan.jpg
0102-A-P-01-GA-Plan.jpg
0102-A-P-02-GA-Plan.jpg
GF 02.jpg
White Strip.jpg
GF 03.jpg
White Strip.jpg
GF 01.jpg
White Strip.jpg
L01.jpg
White Strip.jpg
L02.jpg
prev / next